Capannone in vendita

Mappano, Via Goretta
€ 1.490.000
10 locali 10 locali
3800 Mq 3800 Mq

Capannone in vendita

Mappano, Via Goretta

Descrizione annuncio

Mappano - Via Cottolengo - USO INVESTIMENTO -l'area in cui è ubicato l'immobile è caratterizzata dalla presenza di numerosi edifici industriali di recente costruzione ed è facilmente raggiungibile in quanto è a pochi chilometri da Torino e in prossimità degli ingressi delle rispettive tangenziali Torino - Aosta e Torino - Milano

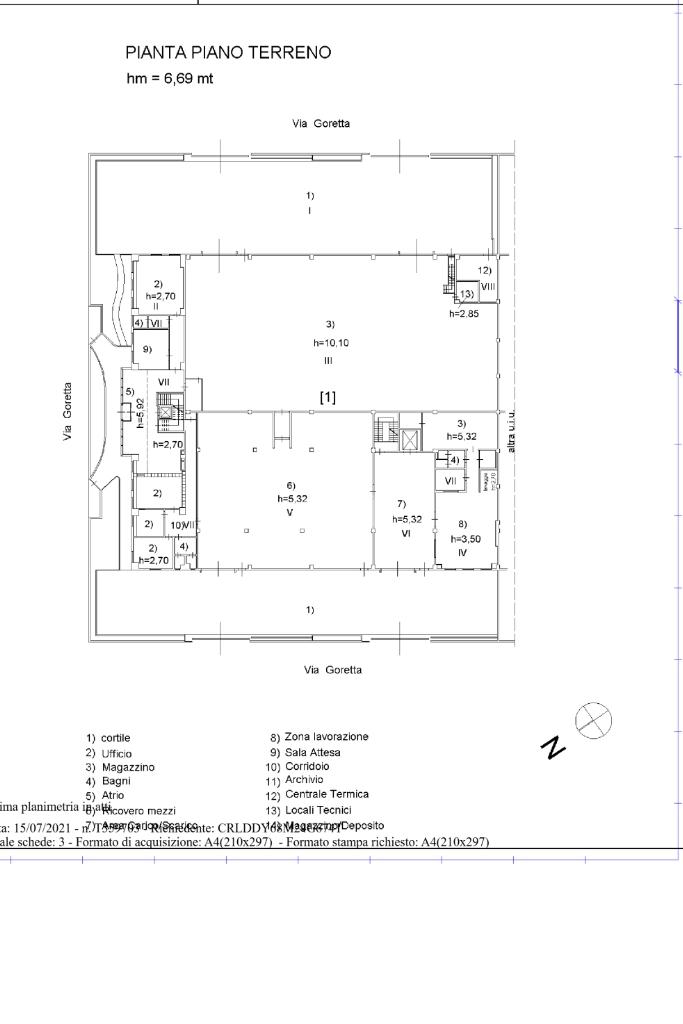
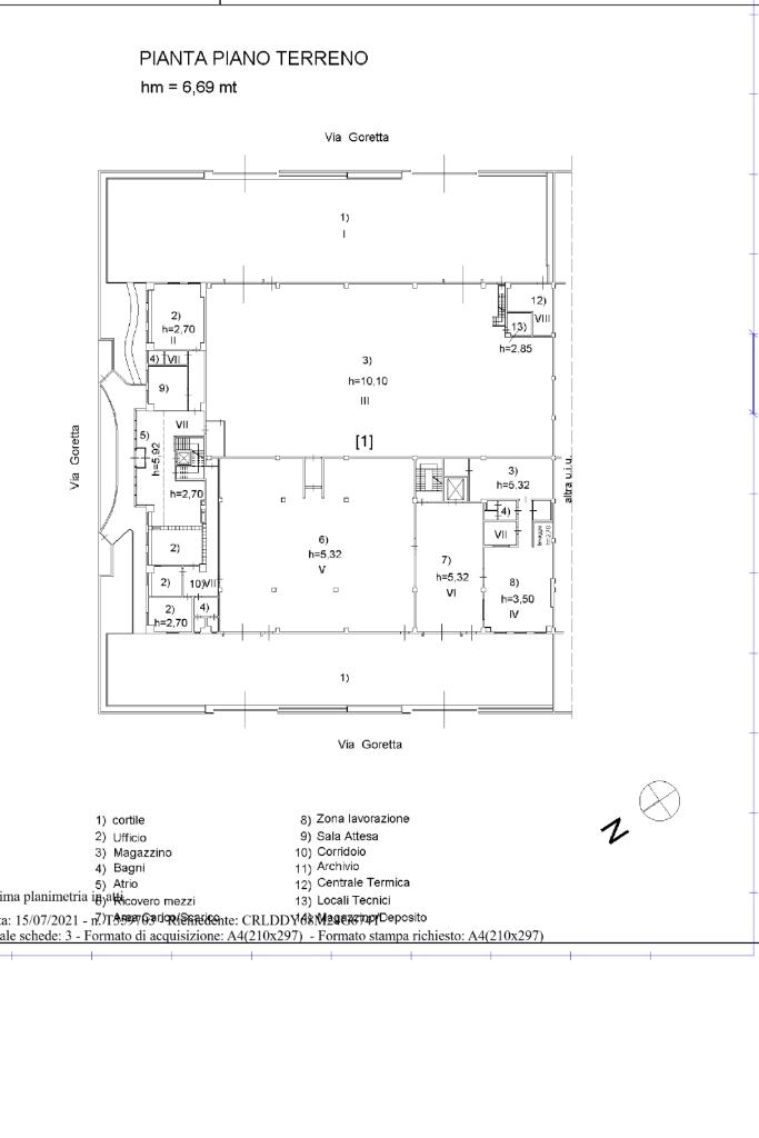
Il capannone è indipendente su tre lati e risulta cosi composto:

- zona produttiva/magazzino al piano terra di circa 1800 mq , in parte dotata di mensole per installazione carroponte e con altezza sotto trave di circa 10 metri.

- palazzina uffici di rappresentanza è servita da ascensore è disposta su livelli per una metratura complessiva di circa 1220 i piani sono dotati di impianto di riscaldamento/raffrescamento autonomo.

- zona magazzino/ laboratorio al piano superiore servita da montacarichi per una metratura di circa 720 mq

- presenza impianto elettrico con potenza attualmente di 100 kw

Completano il fabbricato la presenza di quattro ampi ingressi carrai che danno accesso alla zona produttiva/magazzino e ai due cortili privati.

Per le sue caratteristiche l'immobile è adatto ad attività di tipo artigianale / industriale che necessitano di una soluzione d'immagine e prestigio.

L'immobile è locato ad azienda referenziata specializzata nella progettazione, confezionamento e il commercio all’ingrosso di profumi e prodotti cosmetici.

Mostra tutto

Nelle vicinanze

Trasporto pubblico Trasporto pubblico
Olivetti
Olivetti
480 m
Centro Commerciale
Centro Commerciale
530 m
Ricariche auto elettriche Ricariche auto elettriche
Municipio di Leini | EnelX
2,2 Km
Scuole Scuole
Mappanmondo
1,4 Km
Istituto "Giovanni Falcone"
1,5 Km
Scuole
1,6 Km
Scuola dell'Infanzia "Carlo Collodi"
1,7 Km
Istituto Comprensivo Carlo Casalegno
2,5 Km
Farmacia Farmacia
Il Giglio
1,4 Km
Farmacia
1,8 Km
Farmacia Comunale 4
1,9 Km
Supermercati Supermercati
MD
1,9 Km
Pam
2,0 Km
Crai
2,2 Km
Eurospin
2,2 Km
Negozi Negozi
Zaia
1,4 Km
Negozi
1,7 Km
Momi
2,0 Km
Bar Bar
Lai
1,4 Km
Bar
1,7 Km
Chiosco Mappano
2,0 Km
Ristoranti Ristoranti
Ristoranti
1,0 Km
Haru restaurant
1,2 Km
Vecchio Pavone
1,7 Km
Pepe Vino e Cucina
2,1 Km
Piccolo Ranch Paradiso
2,3 Km
Mostra tutto

Caratteristiche

Rif.:
60654647
Piano:
2 di 2 con ascensore (Piano su più livelli)
Condizionamento:
Autonomo
Ascensore:
Riscaldamento:
Autonomo
Giardino:
Privato e Condominiale
Mostra tutto
Prezzo Prezzo
€ 1.490.000
Rata mutuo Rata mutuo
€ 7.061 / mese
Spese annue Spese annue
€ 3.000
Proponi il tuo prezzoProponi il tuo prezzo

Altre caratteristiche

Descrizione dei locali
Bagno Con Finestra

Classe Energetica

G
G
G
G
G
G
G
G
G
EP globale non rinnovabile:
16401.00 kW h/m² anno
EP globale rinnovabile:
218.00 kW h/m² anno
EP invernale del fabbricato:
EP estiva del fabbricato:
Anno di costruzione:
2009
Riscaldamento:
Autonomo
Tipo impianto:
Ad aria
Tipo alimentazione:
Altro

Ti interessa visionare l'immobile?

Fissa un appuntamento  Fissa un appuntamento

Richiedi informazioni

Clicca su Leggi per aprire l'informativa
* Questi campi sono obbligatori

Calcola il tuo mutuo

Semplice e senza impegno
Anticipo

( % )
Mutuo

( % )

pochi semplici passi

inserisci i tuoi dati
Questionario completato
Grazie per aver richiesto un appuntamento senza impegno con un nostro Consulente del Credito e Assicurativo.

Hai inserito correttamente tutti i dati necessari e a breve riceverai una e-mail con un link da convalidare per inviare i tuoi dati.
Affiliato
Immobili Per L'Impresa Sas
Via Lanzo, 151 10071 Borgaro Torinese (TO)

Il nostro staff


  • Nicola Cerrito
    Affiliato

  • Sonia Iadevaio
    Coordinatrice

  • Fabio Di Figlia
    Collaboratore

  • Alessandro Mantione
    Collaboratore

  • Matteo Ricciardi
    Responsabile
Via Lanzo, 151 10071 Borgaro Torinese (TO)
Zona: Borgaro-Venaria R.-druento-Caselle-Robassomero
Mostra su mappa
Orari: lunedì al venerdì 08:30 12:30 - 14:30 19:30 sabato 8:30 12:30
Affiliato
Immobili Per L'Impresa Sas
Via Lanzo, 151 10071 Borgaro Torinese (TO)

2026 Tecnocasa Franchising S.p.A. - P. IVA 08365160152 - Via Monte Bianco 60/A 20089 Rozzano (MI). Ogni agenzia ha un proprio titolare ed è autonoma. Privacy policy | Policy utilizzo | Cookie policy