Capannone in vendita

Val Della Torre, Via Guglielmo Marconi - Brione
€ 230.000
Prezzo aggiornato
10 locali 10 locali
545 Mq 545 Mq
3 bagni 3 bagni

Capannone in vendita

Val Della Torre, Via Guglielmo Marconi - Brione

Descrizione annuncio

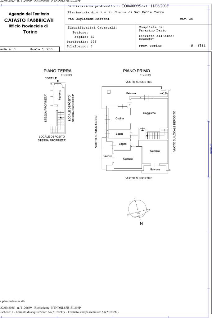
Val Della Torre - Via Marconi - In zona industriale di recente costruzione proponiamo in vendita capannone con abitazione e terreno edificabile adiacente.

L'immobile è cosi composto:

-capannone di circa 445 mq con tre accessi carrai, impianto elettrico e cortile privato. Presenza di uffici e spogliatoi dotati di impianti riscaldamnento e raffrescamento

-alloggio al primo piano di circa 100 mq con accesso indipendente, apia zona living, cucina abitabile, due camere da letto e servizi igienici. Completano l'appartamento un terrazzo e due balconi.

-terreno edificabile di circa 1000 mq.

L'immobile è adatto per attività produttive, magazzini e attività di lavorazioni artigianali.

Ideale per chi vuole abbinare l'attività lavorativa e l'abitazione perchè situato in zona tranquilla all'interno di un contesto misto abitativo/industriale

Mostra tutto

Nelle vicinanze

Ricariche auto elettriche Ricariche auto elettriche
Municipio di Givoletto | EnelX
2,1 Km
Givoletto Via Torino | EnelX
2,6 Km
Scuole Scuole
Scuole
1,1 Km
Scuola Elementare
2,2 Km
Farmacia Farmacia
Farmacia Dottor Gallo
2,1 Km
Supermercati Supermercati
Despar
2,0 Km
Bar Bar
Bellini
2,1 Km
La Caneva de Nino
2,1 Km
Ristoranti Ristoranti
La Coccinellla
1,9 Km
La Vecchia Lira
2,2 Km
Ristorante dei Cacciatori
2,3 Km
La Ruota
2,5 Km
Lo Scacciapensieri
2,7 Km
Mostra tutto

Caratteristiche

Rif.:
61121137
Piano:
Terra di 2
Totale piani:
2
Balconi:
3
Condizionamento:
Autonomo
Ascensore:
No
Mostra tutto
Prezzo Prezzo
€ 230.000
Rata mutuo Rata mutuo
€ 1.085 / mese
Spese annue Spese annue
€ 0
Proponi il tuo prezzoProponi il tuo prezzo

Altre caratteristiche

Descrizione dei locali
Bagno Con Finestra

Classe Energetica

D
D
D
D
D
D
D
D
D
EP globale non rinnovabile:
115.20 kW h/m² anno
EP globale rinnovabile:
0.26 kW h/m² anno
EP invernale del fabbricato:
EP estiva del fabbricato:
Anno di costruzione:
2000
Riscaldamento:
Autonomo
Tipo impianto:
A radiatori
Tipo alimentazione:
Metano

Prezzo ridotto di €1 (8%%)

Ti interessa visionare l'immobile?

Fissa un appuntamento  Fissa un appuntamento

Richiedi informazioni

Clicca su Leggi per aprire l'informativa
* Questi campi sono obbligatori

Calcola il tuo mutuo

Semplice e senza impegno
Anticipo

( % )
Mutuo

( % )

pochi semplici passi

inserisci i tuoi dati
Questionario completato
Grazie per aver richiesto un appuntamento senza impegno con un nostro Consulente del Credito e Assicurativo.

Hai inserito correttamente tutti i dati necessari e a breve riceverai una e-mail con un link da convalidare per inviare i tuoi dati.
Affiliato
Immobili Per L'Impresa Sas
Via Lanzo, 151 10071 Borgaro Torinese (TO)

Il nostro staff


  • Nicola Cerrito
    Affiliato

  • Sonia Iadevaio
    Coordinatrice

  • Fabio Di Figlia
    Collaboratore

  • Alessandro Mantione
    Collaboratore

  • Matteo Ricciardi
    Responsabile
Via Lanzo, 151 10071 Borgaro Torinese (TO)
Zona: Borgaro-Venaria R.-druento-Caselle-Robassomero
Mostra su mappa
Orari: lunedì al venerdì 08:30 12:30 - 14:30 19:30 sabato 8:30 12:30
Affiliato
Immobili Per L'Impresa Sas
Via Lanzo, 151 10071 Borgaro Torinese (TO)

2025 Tecnocasa Franchising S.p.A. - P. IVA 08365160152 - Via Monte Bianco 60/A 20089 Rozzano (MI). Ogni agenzia ha un proprio titolare ed è autonoma. Privacy policy | Policy utilizzo | Cookie policy